

ZUR ERSCHLIESSUNG. Für Fußgänger wird die Erschließung bevorzugt über die bereits vorhandene Rampenanlage in Verlängerung der Wilhelmstraße erfolgen. Die im Rahmen des Neubaus der Stiftung Liebenau geplante Treppenanlage ist durch eine Rampe zu ersetzen, die den barrierefreien Zugang des Geländes vom Stadtzentrum aus gewährt. (Zur Anbindung der Spiel- und Liegewiese vgl. die Anmerkungen zur Freiflächengestaltung.) Die Bushaltestelle bleibt an ihrem bisherigen Ort; sie wird neu gestaltet und mit dem ›WC für alle‹ kombiniert. — Die Erschließung mittels Fahrrädern kann naturgemäß von überall her erfolgen; die notwendigen Stellplätze sind daher in kleineren Gruppen dezentral auf dem Gelände verteilt. — Für den motorisierten Verkehr erfolgt die Anbindung von der Seesteige her; von hier aus ist auch auf kürzestem, d.h. am wenigsten störendem Weg die Zufahrt zur im Sockel untergebrachten Garage mit sechzig Stellplätzen zu erreichen. Die Zufahrt zu den anliegenden Nachbargebäuden wie auch zu den oberirdisch angelegten restlichen vierzig der geforderten hundert Stellplätze erfolgt über die – vom Charakter her nicht als Straße ausgebildete – Fläche unterhalb der Terrasse und von dieser über eine Straße entlang der westlichen und nördlichen Grenze des Gebiets. Dank dieser ist es gewährleistet, daß die westlich und nördlich anschließenden Liegenschaften auch dann erreichbar sind, wenn die Fläche vor dem Bürgerhaus für den Fahrzeugverkehr gesperrt ist, etwa im Rahmen des Seenachtsfests.




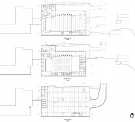
ZUM RAUMKONZEPT. Vier voneinander unabhängige Raumeinheiten können in unterschiedlichen Kombinationen zusammengeschlossen werden: die beiden Teile des Saals, das Foyer und der Mehrzweckraum im Obergeschoß. Jede dieser Einheiten kann als selbständige, autonome Zelle mit eigenständigem Charakter aufgefaßt und genutzt werden, doch vermögen sie, im Zusammenschluß konsistente Räume zu bilden. Dies geht soweit, daß bei einem gemeinsamen Bespielen aller vier Einheiten ein großes Raumkonglomerat entsteht, das nichts Zusammengesetztes mehr erkennen läßt: die beiden Saalräume und das große Foyer werden zu einem gut gegliederten einheitlichem Raum mit optimaler Ausrichtung auf die Bühne, der Mehrzweckraum erhält nun den Charakter einer Empore. Auch einzeln sind die Einheiten unabhängig voneinander und gleichzeitig bespielbar. Ermöglicht wird dies durch den zweiten Teil des Foyers, der als eine Art breiter Flur die unabhängige Erschließung gewährleistet. Dieser Teil hat jedoch noch eine andere Funktion, die als eine der wesentlichen Qualitäten des Bürgerhauses seinen grundsätzlich offenen Charakter schafft: er stellt als eine eine Art Filter die Verbindung von Sälen und Foyer zur großen Terrasse her, sodaß bei entsprechender Nutzung die zusammengeschlossenen Räume sich in ihrer gesamten Breite zur Terrasse öffnen – und damit eben auch ihre hervorragende Verbindung zur vorgelagerten Freifläche aufweisen. Diese Öffnung der Räume wird dadurch unterstützt, daß die über den Saaltüren angebrachten Klappen vollständig geöffnet werden können, wenn Tageslicht und eine qualitätvolle Verbindung nach außen gewünscht wird. — Die große Terrasse als integraler Teil des Raumkonzepts erhebt sich ein knappes Geschoß hoch über dem ebenen Teil des Geländes, ist auf ihn bezogen. Die vorgelagerte Reihe von Bäumen hat dank ihrer hohen Kronenan - sätze keine trennende, sondern eine verbindende Funktion, wenn es um die Beziehung von Terrasse und Platzfläche geht – was ja nicht nur beim Seenachtsfest, sondern auch bei der alltäglichen Nutzung von nicht zu unterschätzender Bedeutung ist. — Die Konzepte der Innenräume, der ihnen assoziierten Terrassen und der Freiflächen sind somit keinesfalls voneinander zu trennen.



ZUR RAUMAKUSTIK. Sowohl die Klappen über den Türen, mit denen die Säle zum Foyerflur geöffnet oder geschlossen werden können, als auch die ensprechenden Einrichtungen auf der gegenüberliegenden südlichen Saalwand sollen drehbar sein, sodaß je nach Bedarf unterschiedliche Nachhallzeiten eingestellt werden können. — Daß die ausschließliche Verwendung von Holz als Baustoff für sämtliche relevanten Räume optimale akustische Bedingungen herstellt, bedarf nicht eigens der Erwähnung. ZU HAUSTECHNIK UND
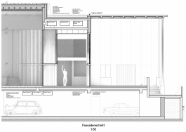
ENERGIEKONZEPT. Hier ist es das Ziel, die aktuellen Anforderungen nach Umweltverträglichkeit, Klimaschutz und Nachhaltigkeit – und auch nach Komfort – mit einem möglichst geringen Aufwand an Technik zu erfüllen – nicht zuletzt im Hinblick auf Anfälligkeiten, und auch, um Wartungs- und Reparaturkosten so gering wie möglich zu halten. Da in Weil keine Einschränkungen bestehen, was die Nutzung von Erdwärme betrifft, kann die Energiegewinnung mittels Erdsonden und Wärmepumpen erfolgen, in Verbindung mit Photovoltaik auf den geneigten Teilen des Daches. In der Heizperiode empfiehlt sich bei dieser Konstellation eine Beheizung der Saalräume und des großen Foyers über die Decken, für die restlichen Räume über die Fußböden, was jeweils mit energetisch günstiger niedriger Vorlauftemperatur betrieben werden kann. Dies hat in Verbindung mit der Erdwärmepumpe den angenehmen Nebeneffekt, daß im Sommer bei hohen Temperaturen kaltes Wasser aus den Sonden durch die Heizflächen gepumpt wird und so erwärmt wieder zurückfließt, um im Erdreich Energie für die Heizperiode zu deponieren, wodurch sich eine kostenlose, energiefreie und im Vergleich mit einer Klimaanlage ausgesprochen angenehme Kühlung des Gebäudes ergibt. — Die Belüftung der Säle und des Foyers erfolgt über den Hohlboden mittels Quellüftung an den Rändern der Räume. Abgesaugt wird die Luft durch den Hohlraum über dem Foyer und die Technikräume im Obergeschoß auf der Südseite. — Durch dieses Konzept, insbesondere dank der Verbindung von Erdwärmepumpen und Photovoltaik, wird sich für das Bürgerhaus eine CO2-Neutralität erreichen lassen.

ZUR FREIFLÄCHENGESTALTUNG. Die Freiflächen gliedern sich in drei Zonen: zum einen den See mit der ihn unmittelbar umgebenden ›naturnahen‹ Bepflanzug, also dem schönen vorhandenen Baumbestand, zum anderen die westlich davon gelegene ebene Fläche, deren ›formale‹ Baumbepflanzung im Zusammenspiel mit der Terrasse des Bürgerhauses den Rahmen für allerhand Aktivitäten bietet, von Spielen über Konzerte bis zu größeren Festen, zum dritten die nach Süden ansteigende Streuobstwiese, die als Spiel- und Liegewiese die Fortsetzung des sich nach Westen ziehenden Grünzugs bildet und in ihrem östlichen Teil mittels Trockenmauern die Verbindung zum Bürgerhaus und seinen Terrassen herstellt. Auf jeden Fall wünschenswert wäre es, diesen Bereich an die im Südwesten gelegene fußläufige Erschließung vom Stadtzentrum her anbinden zu können (wie im Lageplan dargestellt). Die Charaktere dieser drei Zonen sind unterschiedlich, reichen vom Eindruck spontanan Grüns am See über die Konservierung der noch in Resten vorhandenen landwirtschaftlich geprägten Kulturlandschaft der Streuobstwiese bis zum gestalteten architekturnahen urbanen Grünraum vor dem Bürgerhaus, der im Verein mit dessen vielfältigen Raumangeboten dem kulturellen Leben der Stadt einen großzügigen und angemessenen Rahmen setzt und bietet.



ZU DEN ÖKOLOGISCHEN GESICHTSPUNKTEN. Es soll, wo sinnvoll und vertretbar (das Bauen am Hang und in ihn hinein erzwingt hier gewisse Einschränkungen) Holz als der nachhaltigste alle Baustoffe so weit als möglich Anwendung finden. Der Verzicht auf Produkte der Bauchemie ist erfahrungsgemäß ein frommer Wunsch, doch sollen auch hier die zur Verfügung stehenden Möglichkeiten ausgeschöpft werden.
— Bei den Stellplätzen fiel die Entscheidung zugun sten einer Garage aus – alle geforderten hundert oberirdisch anzulegen, würde die Nutzbarkeit der Freiflächen in keinesfalls erstrebenswerter Weise beschrän ken, und es entspräche dann der Charakter des gesamten Ensembles keinesfalls dem, was man sich hier wird wünschen und vorstellen können. — Zu den Gesichtspunkten, welche Energiegewinnung und Haustechnik betreffen sowie zur CO2-Neutralität vgl. den entsprechenden Abschnitt.
